Lot S4 - ZAC Gare des Mines-Fillettes, Paris 18ème (75)

retour
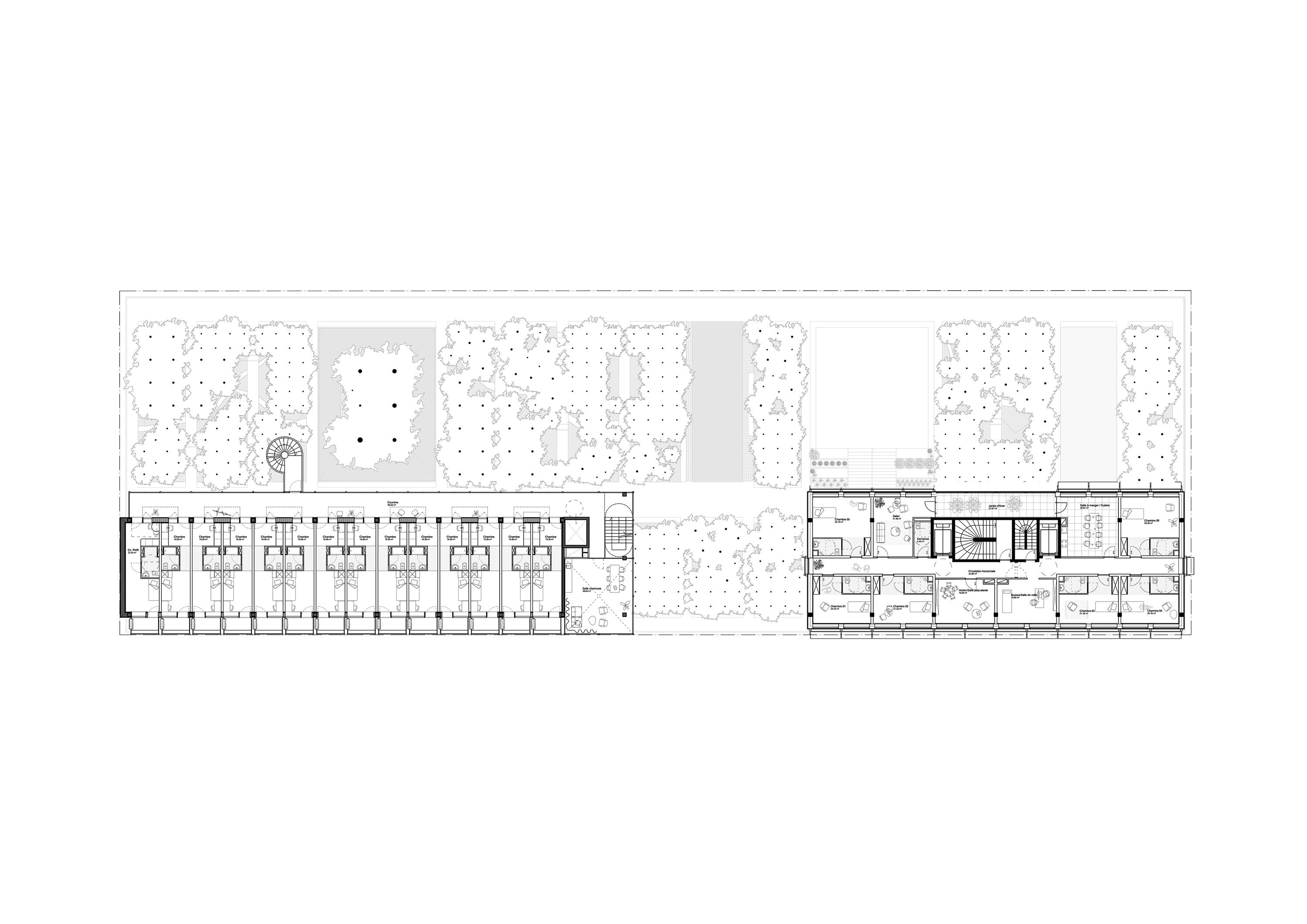
  • Programme

    Immeuble pluriel : équipement sportif, foyer de vie et résidence étudiante

  • Intervention

    Construction neuve

  • Maitrise d'ouvrage

    Paris Habitat

  • Lieu

    Paris 18ème

  • Statut

    Etudes en cours

  • Surface

    4 700 m²

  • Budget

    24 M€ HT

  • Maitrise d'oeuvre

    La Soda (mandataire)

  • Partenaires

    EVP ingénierie, Albert & Co, ACFI, VPEAS, Acoustique & Conseil, HBLA, Mobius, Ispira

  • Mission

    Complète

  • Perspective

    Ailleurs studio