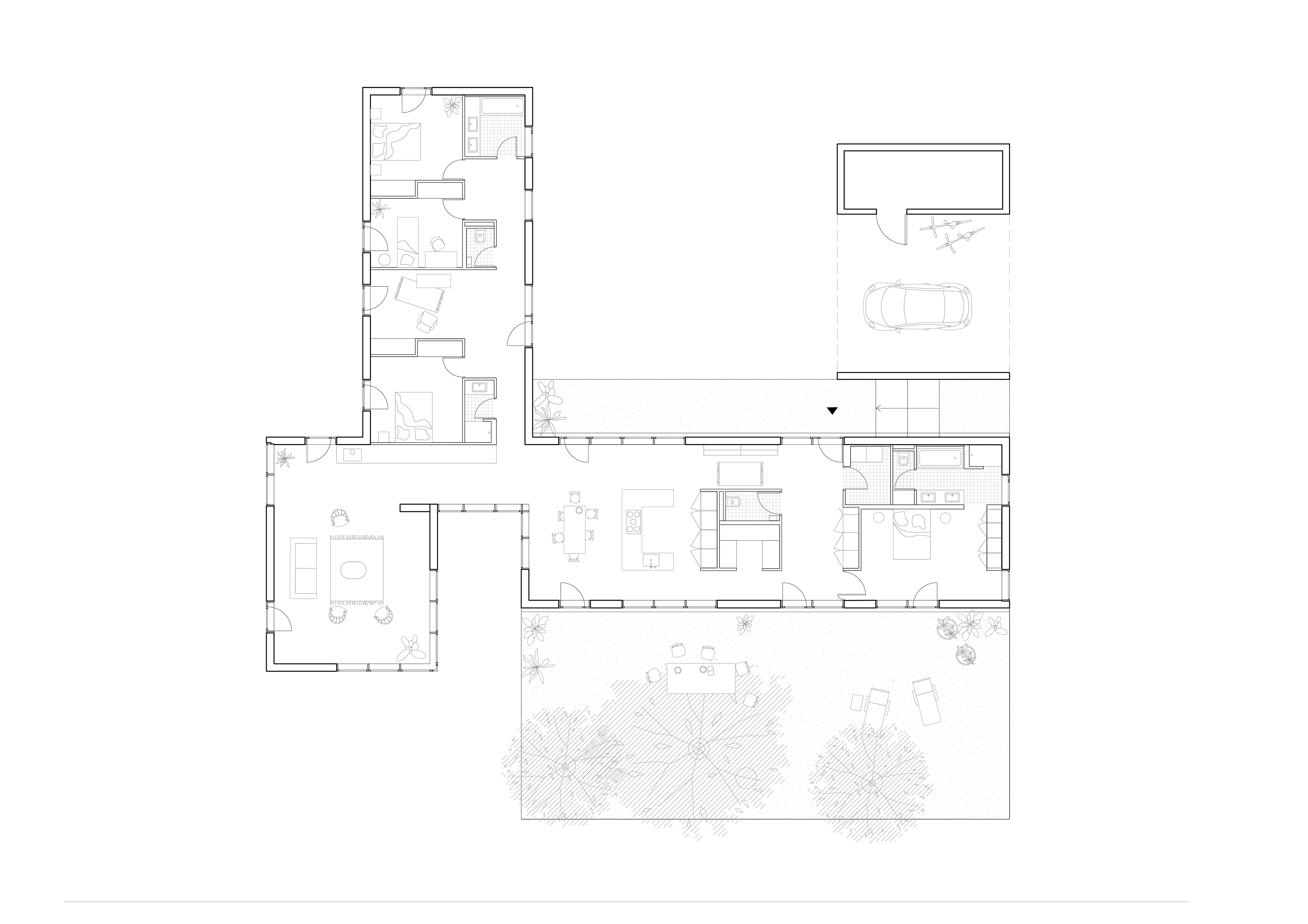
Vasterival, Sainte-Marguerite-sur-Mer (76)

retour
  • Programme

    Maisons bioclimatiques

  • Intervention

    Construction neuve

  • Maitrise d’ouvrage

    De Sutter et frères

  • Lieu

    Sainte-Marguerite-sur-Mer (76)

  • Statut

    Livré (2020)

  • Surface

    420 m²

  • Budget

    0,97 M€ HT

  • Maitrise d’œuvre

    La Soda (mandataire)

  • Partenaires

    Auger Structure

  • Mission

    Complète

  • Photographies

    Cyrille Weiner